MURAS | Oficina de Arquitectura

HOME

EL ESTUDIO

OBRAS

ARTE

SERVICIOS

CONTACTO

< VOLVER

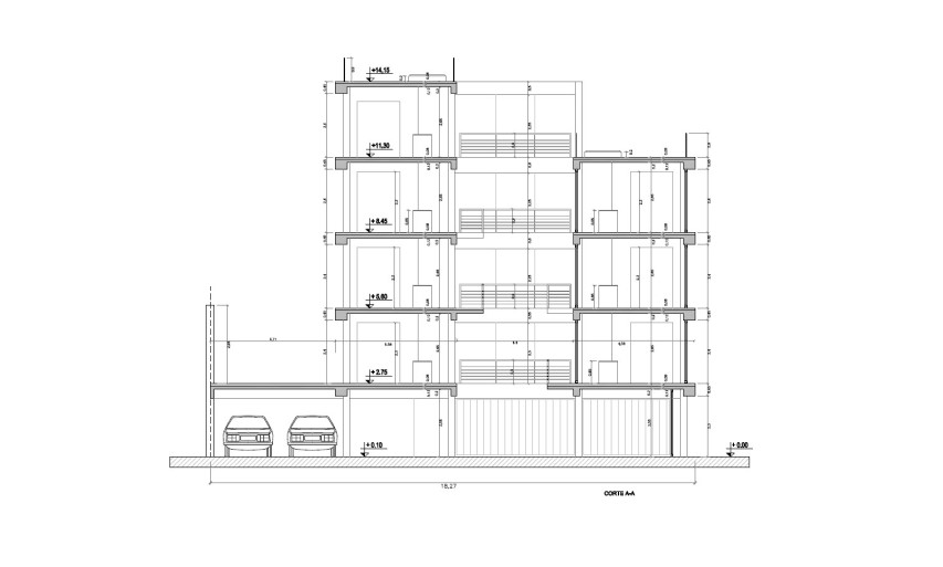
EDIFICIO NUÑEZ PARK STUDIOS

Año de proyecto: 2018
Año de construcción: 2019-20
Superficie de terreno: 159 m2
Superficie construida: 555 m2

AUTOR
Arq.
Ariel Muras

COLABORADORES
Ing. Osvaldo Molteni
Ivan Elias
Bruno Robotti
Alejandro Gamboa

UBICACION

Manzanares 2986,
Nuñez, Ciudad de Buenos Aires.

La vuelta de la investigación a la tipología de PH barrial y sobre la base de un programa de apartamentos mínimos nos llevó esta vez a la búsqueda de lo inédito. El resultado derivó en la conformación de una unidad de 37 m2 única en la plaza inmobiliaria de Buenos Aires.

Sobre las premisas ineludibles de captar la luz, la vista, el aire y el cielo como participantes de la calidad habitacional, surge este espacio que desarrolla casi 12 ml de aventanamiento modular al espacio urbano y que con un simple accionamiento convierte a los Studios en virtuales terrazas al exterior. Entonces aire, sol y cielo penetran y lo circulan sin pedir permiso.

Para ello, se utilizó un recurso de alta trayectoria en la arquitectura como lo es el Balcón Francés pero esta vez no para resolver la imposibilidad de un mal contrafrente como se solió usar en infinitas ocasiones de pulmones de edificios céntricos, sino para transformarlo en algo superior, una fachada abierta corrida de lado a lado y el resultado de un interior comunicado y libre.

De esta manera el monoambiente deja de serlo para transformarse en un múltiple ambiente rodeado de patios, verde, vistas y vida. Entonces resulta lo inédito, lo que no debería serlo, la capacidad profesional puesta al servicio del arte de la arquitectura para que la concreción de lo mínimo sea siempre al máximo.