MURAS | Oficina de Arquitectura

HOME

EL ESTUDIO

OBRAS

ARTE

SERVICIOS

CONTACTO

< VOLVER

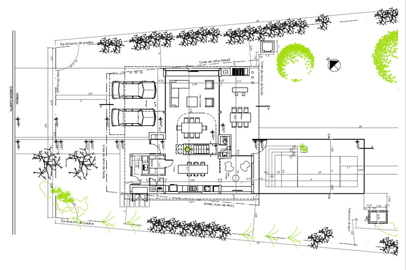
CASA EN EL CANTON

Año de proyecto: 2013
Año de construcción: 2014
Superficie de terreno: 810 m2
Superficie construida: 275,14 m2

AUTOR
Arq.
Ariel Muras

COLABORADORES
Alvaro Dujovny
Elisa Soliz

UBICACION

Lote 142,
Barrio El Canton, Escobar.

El concepto de esta casa con vista al lago fue el de conmemorar desde la arquitectura justamente esa particular y exclusiva condición. Tanto la terraza jardín en prolongación con el Estar intimo en Planta Alta, y La galería en similar condición con el Estar Comedor en Planta Baja, responden a esta iniciativa de conectar el interior de la casa con el espejo de agua, por supuesto mediante grandes paños vidriados y encuadres arquitectónicos del paisaje.

Todo esto complementado desde el corazón de la obra con un centro ahuecado desde el suelo hasta el cielo que de forma orgánica representa la dinámica de movimiento y circulación dentro de la casa y logra llevar esa maravillosa vista a todos los rincones.

Envolver al programa de Planta Alta dentro de la forma cubica refuerza la idea de la casa elevada a la vez que atrapa esa exuberante naturaleza exterior en pedazos de arquitectura exterior transmitiéndolos rápidamente hacia el interior, para disfrutar cada uno de estos filtros a la exacta manera de su tiempo.