MURAS | Oficina de Arquitectura

HOME

EL ESTUDIO

OBRAS

ARTE

SERVICIOS

CONTACTO

< VOLVER

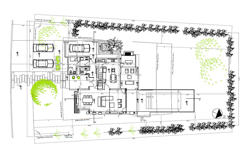
CASA HARAS 2

Año de proyecto: 2007
Año de construcción: 2008
Superficie de terreno: 841 m2
Superficie construida: 257 m2

AUTOR
Arq.
Ariel Muras

COLABORADORES
Arq. Sebastian Kramer
Pablo Melgarejo

UBICACION

Lote 506,
Haras Santa Maria,
Loma Verde, Escobar.

Haras 2 es uno de los eslabones de la exitosa seguidilla de proyectos realizados por nuestra Oficina en el Barrio Privado Haras Santa Maria del Partido de Escobar. En una zona periférica de Buenos Aires de sostenido crecimiento de la vivienda unifamiliar confeccionamos esta obra articulada desde el exterior como un juego de piezas de encastre orientado a destacar la volumetría y horadado desde el interior con rajas, gargantas, huecos usables y conexión de alturas para llegar con la luz hasta el mismo centro y destacarla una vez más. Por otro lado, la combinación del eje vertical del ventanal principal con el eje horizontal del Estar comedor en continuación con la piscina le infieren al conjunto una imagen casi institucional que le brinda prestancia y elegancia a esta casa de habitación.

La cuidada elección en los materiales de terminación, buscando superficies y texturas en el orden de los elementos de la tierra y la vanguardia tecnológica en contraposición, dan un rico crisol de imágenes de gran resultado que nos guardan sensaciones de resguardo y acogimiento como de exposición y brillo en distintos rincones de la casa.