MURAS | Oficina de Arquitectura

HOME

EL ESTUDIO

OBRAS

ARTE

SERVICIOS

CONTACTO

< VOLVER

CASA HARAS 3

Año de proyecto: 2010
Año de construcción: 2012
Superficie de terreno: 1098 m2
Superficie construida: 450 m2

AUTOR
Arq.
Ariel Muras

COLABORADORES
Arq. Sebastian Kramer
Ing. Osvaldo Molteni
Lorena Paz

UBICACION

Lote 1350,
Haras Santa Maria,
Loma Verde, Escobar.

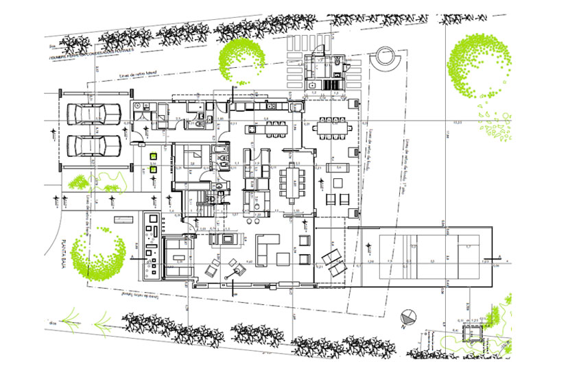
Haras 3 es un proyecto de vivienda unifamiliar ambicioso desarrollado a lo largo de varios años. Con un complejo programa inicial que incluia habitación para huéspedes, sala de cine, comedor para 12 personas, despensa, bar y estar de lectura entre otras cosas. Decidimos trabajar con una imagen fuerte y contundente con base tectónica, la idea de piedra en bruto surgida de las entranas de la tierra y sumamos el concepto de horizontalidad desarrollando líneas largas en fachadas que acusaran esa proyección de volúmenes pesados, importantes envolventes de la figura humana. Finalmente como decisión estratégica y en contraposición incorporamos una terraza jardín al conjunto como plataforma-mirador verde, como intersticio, vacio entre esas rocas artificiales, que contenga el corazón, , la mezcla de luz y aire y motive el encuentro y la contemplación de la distancia.

La elección de los materiales de superficie acompaña el concepto utilizando la pirca de piedra natural en bruto, las marmolinas, la madera dura sin cepillar y el vidrio como representación arquitectónica de la naturaleza en combinación de texturas.

Los interiores bien decorados, sutilmente texturados o combinados cromáticamente y trabajados con un minucioso estudio funcional y de circulaciones completan una obra refinada en cada detalle y única.