MURAS | Oficina de Arquitectura

HOME

EL ESTUDIO

OBRAS

ARTE

SERVICIOS

CONTACTO

< VOLVER

HARAS 5

Año de proyecto: 2014
Año de construcción: 2015
Superficie de terreno: 1076 m2
Superficie construida: 424 m2

AUTOR
Arq.
Ariel Muras

COLABORADORES
Bruno Robotti

UBICACION

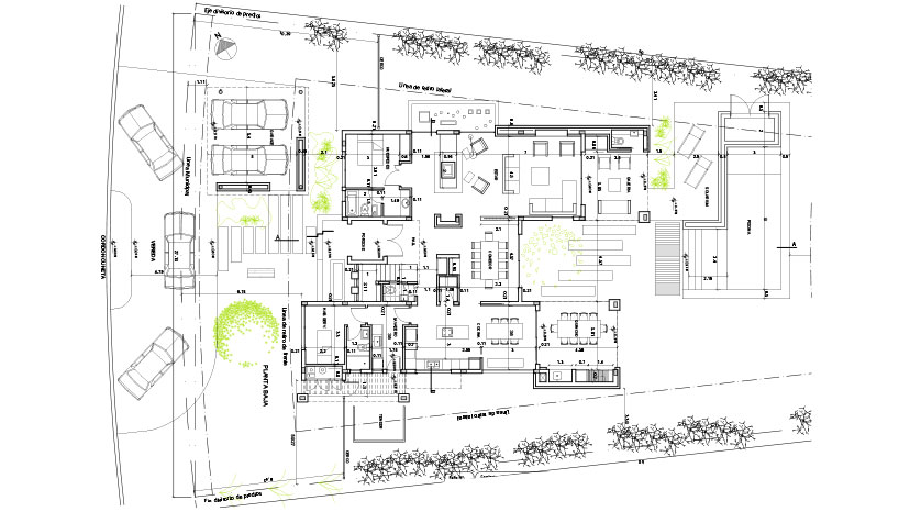
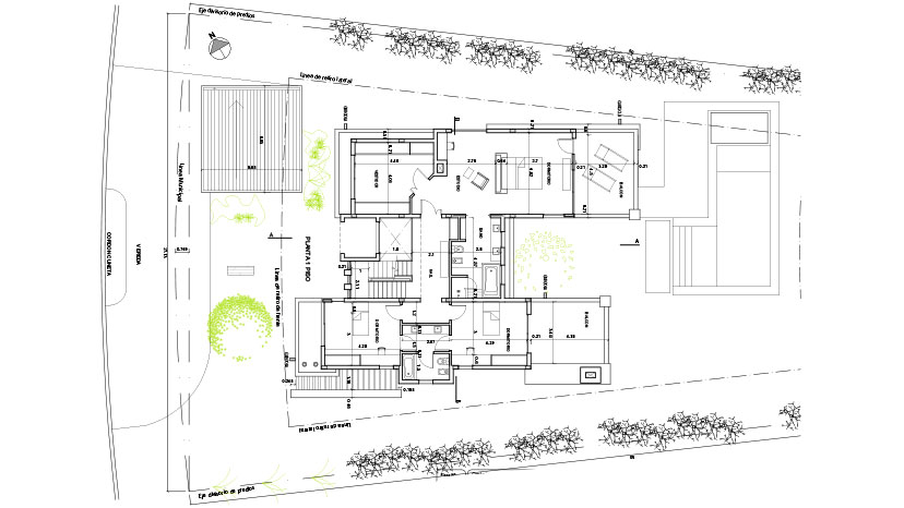
Lote 442, Haras Santa Maria
Loma Verde, Escobar.

La segunda encomienda de un cliente en poco tiempo, luego de vivir en una casa proyectada por nuestra Oficina de Arquitectura reinicia la ilusión con el fin de agrandar espacios y familia, nos encuentra entonces con la doble satisfacción del trabajo bien cumplido y el encargo de un nuevo desafío.

En este caso con la premisa de una imagen clásica hacia el exterior, logramos combinar el encanto de los espacios flexibles y la circulación moderna dentro de una estructuración de planta estilista y muy funcional. El atrio de entrada en conjunto con la triple altura del hall le otorgan a la obra una imagen de monumentalidad arquitectónica eclecticista en contraposición y equilibrio con la libertad visual y la interconexión espacial, en un intento de conjugar lo mejor de ambas historias.

Y como siempre el sutil trabajo de ahondar en la unión de los espacios exteriores e interiores mediante su interrelación constante nos lleva en este caso a moldear el enclave del patio del árbol como una entrada de la naturaleza en el corazón de la propia casa. El disfrute de la vida, la comunidad con la tierra y la reflexión.