MURAS | Oficina de Arquitectura

HOME

EL ESTUDIO

OBRAS

ARTE

SERVICIOS

CONTACTO

< VOLVER

HARAS 6

Año de proyecto: 2015
Año de construcción: 2015
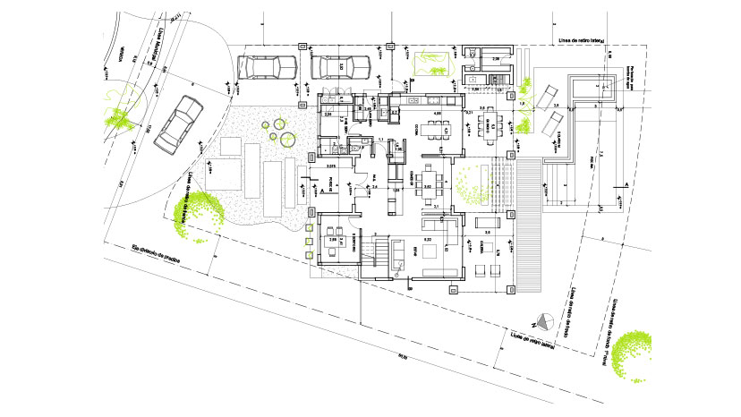
Superficie de terreno: 1231 m2
Superficie construida: 340 m2

AUTOR
Arq.
Ariel Muras

COLABORADORES
Bruno Robotti

UBICACION

Lote 1347, Haras Santa Maria
Loma Verde, Escobar.

Acompañando el desarrollo sostenido del Barrio incorporamos con este caso una nueva encomienda confirmando el éxito de nuestros proyectos en la comunidad de propietarios de Haras Santa María en la zona de Escobar, Provincia de Buenos Aires.

Confeccionamos esta casa como una continuidad de pensamiento proyectual de nuestra última muestra en el sector. Afinando la funcionalidad de la planta hacia un producto más compacto pero con la misma calidad de relación de lo social con el exterior, intensificando la actuación del patio del árbol como referencia central y de expansión hacia las vistas lejanas del golf situado a espaldas del loteo.

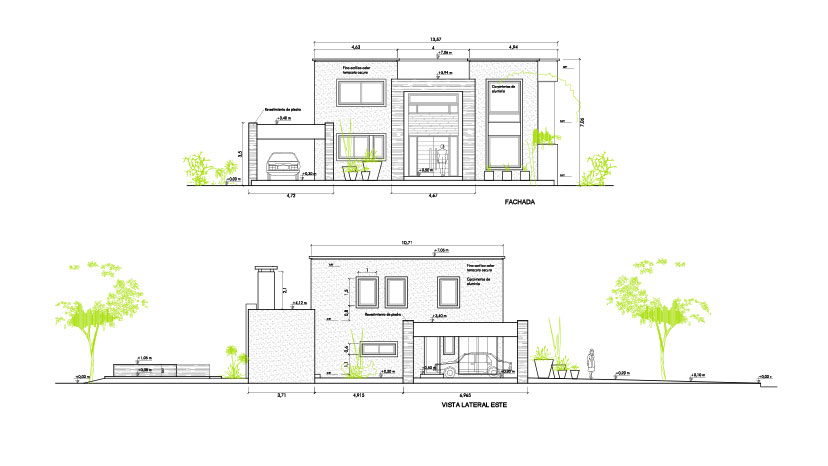
La incorporación de grandes terrazas en PA hacia estas vistas refuerza la necesidad de controlarlas desde un punto de vista más alto para el pleno disfrute del cuadro natural.

Hacia el frente el pórtico de piedra natural en doble altura da monumentalidad a la entrada enmarcando a la lámpara colgante que brilla con sello propio e introduce al visitante a un mundo más fantástico y acogedor. Es asi como este elemento da lógica y nombre a la casa: La casa de la lámpara.

Por último la distintiva implantación del núcleo central de la casa en el terreno, profundo y girado directamente hacia las vistas de la laguna, dan luz y nacimiento al patio de las piedras que se proyecta sobre la idea de diferenciar la calidad y uso del antejardín incorporando en este caso el diseño del piso y el uso de múltiples y divergentes macetones de estilo colonial latinoamericano que otorgan al lugar la mezcla exacta de modernidad y tradición.