MURAS | Oficina de Arquitectura

HOME

EL ESTUDIO

OBRAS

ARTE

SERVICIOS

CONTACTO

< VOLVER

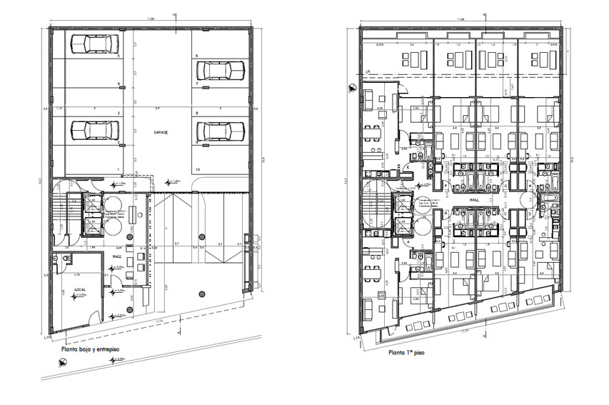
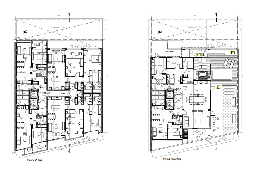
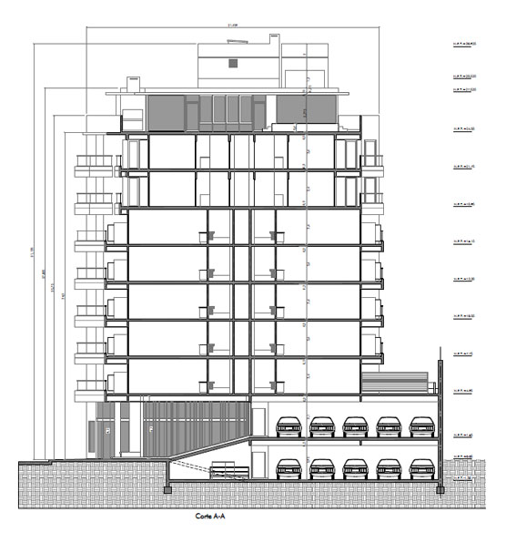
EDIFICIO DORREGO

Año de proyecto: 2013
Año de construcción: --
Superficie de terreno: 450 m2
Superficie construida: 3563 m2

AUTOR
Arq.
Ariel Muras

COLABORADORES
Arq. Sebastian Kramer
Ing. Roberto Sassani
Arq. Luis Ambroggi
Lic. Veronica Solorzano Pereyra
Bruno Robotti
Ivan Elias
Alejandro Gamboa

UBICACION

Dorrego 1615,
Palermo, Ciudad de Buenos Aires,
Argentina

Edificio Dorrego constituye la evolución del trabajo colectivo de nuestra Oficina de Arquitectura hacia un nuevo horizonte de alta productividad técnica, arquitectónica y administrativa, que nos permitió alcanzar el objetivo de desarrollar una pieza proyectada de gran valor.

La complejidad del programa fue resuelta una vez mas, con la combinación ineludible de la creatividad del diseño y la justeza del trabajo en las distintas escalas, valor que nos representa en cada obra. Dando solución a la combinación de tipologías y usos multiples siempre bajo el concepto de simpleza, funcionalidad y contundencia estética.

El uso de los colores, las tramas y la dinámica del remate invitan a contextualizar a la obra en el mundo del barrio introduciéndose en su mundo musical lleno de mercados, ferias, arte callejero, movimiento y tradición.