MURAS | Oficina de Arquitectura

HOME

EL ESTUDIO

OBRAS

ARTE

SERVICIOS

CONTACTO

< VOLVER

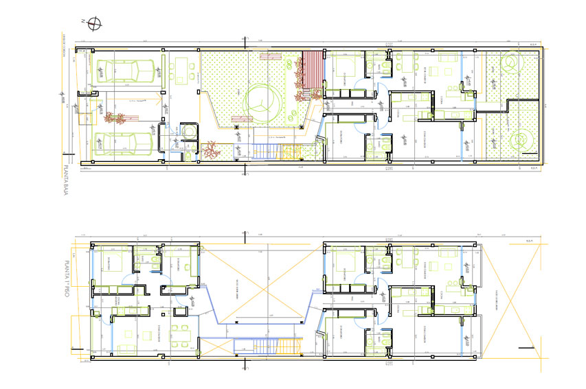
EDIFICIO PEDRAZA PLAZA

Año de proyecto: 2005
Año de construcción: 2006
Superficie de terreno: 295 m2
Superficie construida: 822 m2

AUTOR
Arq.
Ariel Muras

COLABORADORES
Arq. Eduardo Solorzano Pereyra
Alfredo Penna
Rodrigo Bianco

UBICACION

Manuela Pedraza 4276,
Núñez, Ciudad de Buenos Aires,
Argentina

Pedraza Plaza es el resultado de una etapa de investigación del estudio sobre la tipología del PH como fundamento básico de la propiedad privada de la clase media en la Ciudad de Buenos Aires y su reinterpretación dentro del marco de una ciudad en crecimiento y presión demográfica que demandaba productos de calidad ambiental. Asi surge este edificio que se piensa sobre la base de resolver unidades de apartamentos en calidad de casa en comunidad y en relación con la naturaleza. Valorando los espacios verdes, las expansiones y los patios para amplificar la idea de luz, aire y vida.

Sera a partir de entonces, una tipología muy usada en la Ciudad, pero siempre la base de su éxito estará en la utilización de los conceptos aquí volcados. El uso del recorrido arquitectónico como fundamento de cambio anímico humano. La percepción de recogimiento en el traslado de un espacio a otro, la relación interior-exterior abrazando el espacio natural con el construido, constituirán las guias de trabajo en el desarrollo de la idea arquitectónica de nuestra Oficina.

El uso de los materiales en bruto, desnudos de ornamento superficial y llenos de textura propia desbordando personalidad y belleza, en combinación simple con lo natural del espacio vacio en clave de verde y cielo, abordando entonces lo esencial de esta obra y en general el desafio de la arquitectura, el espacio humano en complemento con el espacio universal.